Регулациони планови
МЗ Лазарево 1

028
Измјена РП за простор између ул. Књаза Милоша, Проте Николе Костића, нове трасе ул. Илије Гарашанина и жељезничке пруге Бања Лука-Нови Град

028а
Измјена дијела Регулационог плана за простор између ул. Књаза Милоша, Проте Николе Костића, нове трасе улице И. Гарашанина и жељезничке пруге Бањалука – Нови Град (радни назив: Ливница)

028б
Измјена дијела РП за простор између улица Књаза Милоша, Проте Николе Костића, нове трасе Улице И. Гарашанина и жељезничке пруге Бањалука – Нови Град (радни назив: Ливница)

029
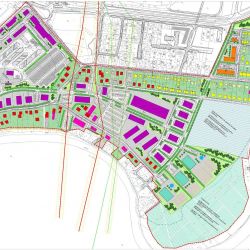
РП за простор између ул. Књаза Милоша, Браће Пиштељића, Браће Подгорник, Проте Николе Костића и жељезничке пруге Бања Лука-Добој

072a
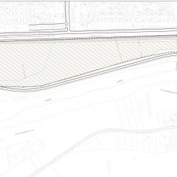
РП за третирање путних прелаза преко жељезничке пруге
у насељима Лазарево, Новаковићи, Куљани и Пријаковци

079б
РП за третирање путних прелаза преко жељезничке пруге у насељима Лазарево, Новаковићи, Куљани и Пријаковци

079ц
РП за третирање путних прелаза преко жељезничке пруге у насељима Лазарево, Новаковићи, Куљани и Пријаковци

079д
РП за третирање путних прелаза преко жељезничке пруге у насељима Лазарево, Новаковићи, Куљани и Пријаковци

081
РП за простор између ул. браће Подгорник, браће Пиштељић, Пиланске улице, жељезничке пруге и комплекса аутобуске и жељезничке станице

121
Измјена РП дијела комплекса између ул. Партизанских авијатичара и Пиланске улице, те жељезничке пруге Суња-Добој и комплекса ВРС




















